Balavar   <

The existing building is located in one of the central neighborhoods of Tehran. Enghelab Street, shaped over the years by the presence of the University of Tehran and numerous cultural and educational institutions, has gradually evolved into the city’s main cultural axis. The building itself dates back approximately 80 years, to a time when the northern boundary of Tehran extended only as far as this district.

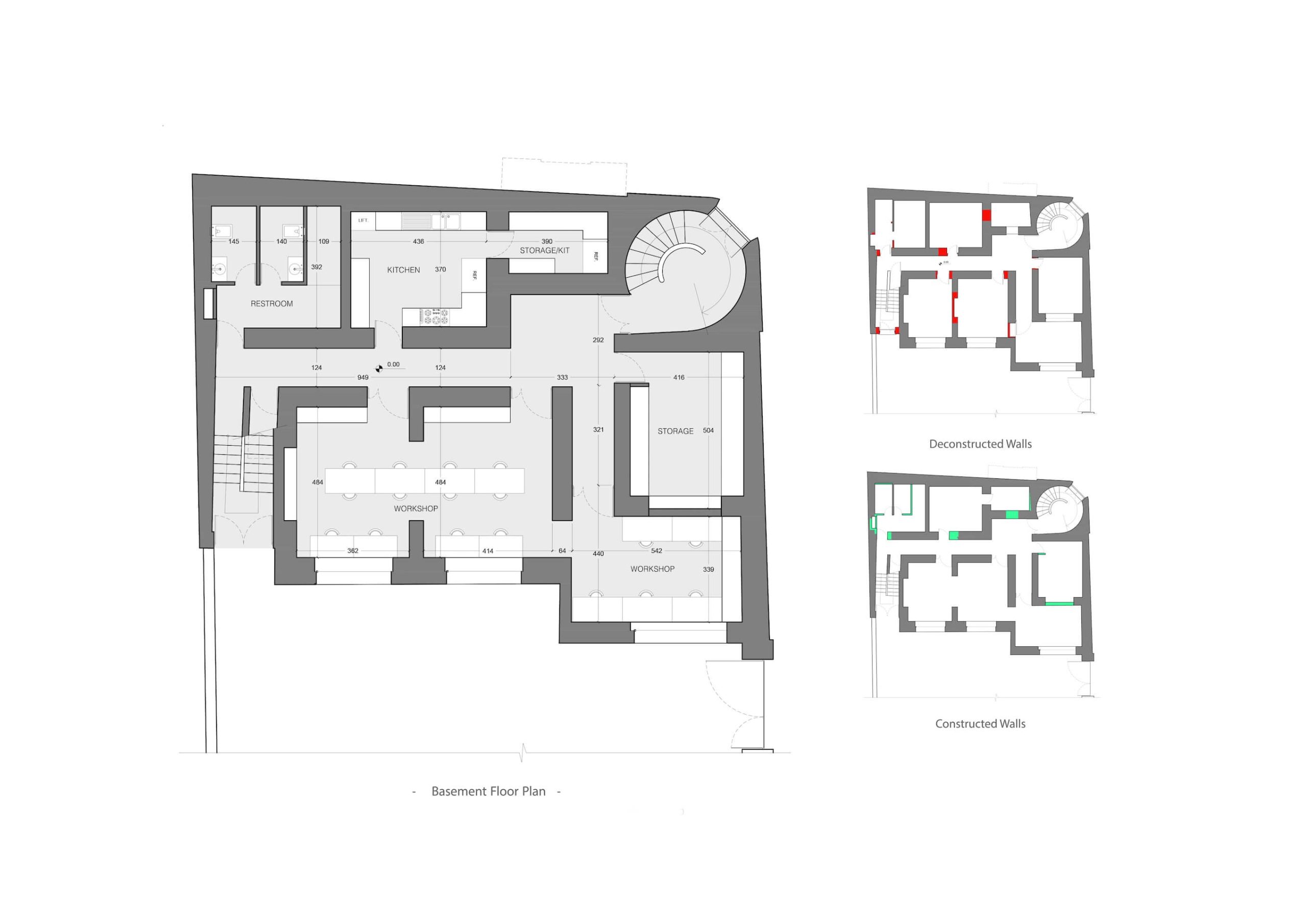
The main objective of the project was to transform the structure from a residential building into a cultural center accommodating a variety of functions such as educational, cultural, and workshop spaces. Given the flexible and evolving nature of the program, the design concept was developed around spatial adaptability. The organization of functions followed this principle: the basement was designated for workshop activities, the first floor housed the library and educational spaces, and the second floor accommodated the auditorium and exhibition areas.

Interventions on the main façade were carefully controlled to ensure that the newly added elements would convey a distinct yet harmonious character in relation to the original exterior. Among these additions, a metal staircase placed in the courtyard provides independent access to the first-floor educational area, while the redesigned pitched roof not only reinforced the structure but also introduced skylights that bring natural light into the core of the building and the exhibition spaces below.

Type: Cultural – Renovation
Location: Tehran, Iran
Team: Pooya Hosseini, Misagh Kaveh, Ghazale Servati, Bashir Yazdani, Nima Yazdani, Afshin Ghaemi, Roje Saturiance, Ahmad Heydari
Status: On Hold
Year: 2021